My name is Dion Moult. I enjoy mixing disciplines and pushing big ideas that improve the world. You can view my resume, send me email, and read my blog

Industry Projects

University Projects

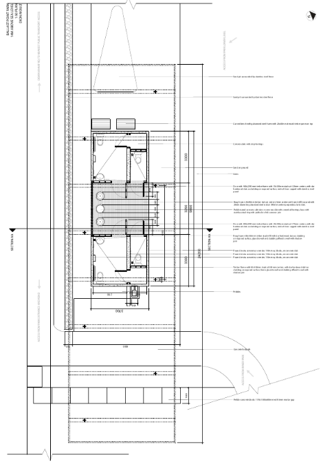
Edmondson Park Town Centre - 2016-2018

Edmondson Park is a new town centre in the Sydney South West for Frasers. Built next to the Edmondson Park train station, it has about 14 apartment towers, a shopping centre with major and cinema, medical centre, childcare, hotel, gym, 2 levels of basement carpark, park, surrounded by suburban sprawl.

The design borrowed principles from the successful town centre of Rouse Hill, with a shopping centre designed to be a "town centre" with pedestrian streets, and each building with its own "feel". The idea was to help decentralise the growth of the city by offering all the amenity and character of a town centre at your doorstep.

After the 75W, I helped produce three DAs for the project (as is the nature of client-driven design changes), and subsequently a tender (both residential and retail), residential marketing drawings, and retail leasing plans. Although I have worked on design and documentation for other retail projects, this was my primary project for a few years where I was involved in a major capacity. I coordinated services with all consultants, produced documentation, visualised designs, and interfaced with the client.

Many challenges were faced in this project. They include client management, the first residential project taken on by the company, the first Revit project for the retail sector (and consequent BIM issues), ADG compliance issues, council strategy, and many, many, design changes. The project team fluctuated from around 15 architects to just 2: me and one other. The project took up the better of 2 years of work, and resulted in well over a thousand A1 drawings, almost all of which I have touched.

The project is currently under construction. Please note that the first 4 fancy CGIs on the left were outsourced and not created by me.

Architectural Visualisation - 2016-2018

With my background in 3D art, I have visualised many designs for internal design reviews and competition entries. I think accurate visualisation is incredibly important for the design review process and we all need a bit more funkiness in our lives. A curated selection is shown here.

I have also done some basic fly-through animations, static, and dynamic VRs.

Most of these renders are relatively typical of those with a CG background, as opposed to some more collage-like visualisation. In other words, they are full 3D scenes with minimal to no 2D post processing except for the addition of people.

Three of these buildings received special mentions in HDR's internal "Opacity" design awards in 2017. They were the Macquarie University Interdisciplinary Research Facility (IRF) (images 1-6), Point Property's Thornton Community (image 7), and the Sydney University Health Precinct (image 9-11).

The FOMO Freemantle project (image 13) was in the 2019 MIPIM / The Architectural Review Future Project Awards 2019 Shopping category as a commended project, and in the 2018 WAF shortlist in the leisure-led development category.

Three of these buildings that I have rendered are now built as of 2019 (images 13, 16, and other not shown), and upon comparison with the renders, they are not too far off the physical manifestation.

The visualised sections (image 18) were part of the Chengdu White Buddha train station urban centre competition, won in 2019. I participated in designing, modeling, and visualising the retail and landscape spine.

Computational Design - 2016-2019

My background in software and 3D has not gone unused in the architectural realm. When building workflows, I use open-source technologies and open-data standards, so that my work is applicable across industries, rather than limited to a single firm's stack. Here is a list of some of the various tools and workflows developed over time:

  • Scripts automatically analysed and compared client services requirements with BIM data. It was discovered that 70% of promised equipment service connections were not delivered. With in-depth reports, upper management and myself proceeded with damage control to both manage client expectations and fix the model in the background.
  • 2D and 3D changes were "diffed" to spot changes between revisions. Architects have a primitive form of communicating and reviewing changes in the form of red clouds and a game of "spot the difference". I developed visualisation techniques that automatically highlighted changes in 2D drawings and 3D models between revisions for internal QA before submissions, help communicate clearly changes to consultants in fast paced projects, and to catch sneaky changes that were not clouded.
  • I built an improved document formatter for room data sheets and equipment schedules. For large projects, BIM data is fed into dRofus to produce reports automatically. We weren't happy with the reports out of the box, so I built my own report generation system, which included features like automatic changelogs of what changed between reports. It's now used throughout the office.
  • I applied a little known VFX technique to convert 2D renders into 3D point clouds. What was initially an experiment with a render turned into the ability to "step" into a partially rendered 3D environment, all from a simple 2D image. I have yet to document this technique publicly.
  • Document control for large projects through Aconex were semi automated. Large projects, such as Sunshine Coast University Hospital, easily have more than 10,000 drawing sheets. QA, transmittals, and version control is a full time job in itself. Now a computer does the boring stuff, cutting down last-minute submission times from a day to minutes.
  • I used sentiment analysis to see what people thought of our buildings. We designed an award winning timber hotel wing. I decided to validate how well the building actually performed by scraping reviews off tourist website and running a form of natural language processing (NLP) called sentiment analysis. The computer can see when people are happy or sad. It turns out people are disappointed with the acoustic insulation and wish the "Lakeside" hotel actually had a view of the lake, not a parking lot.
  • I helped build a real-time blocking and stacking tool for Macquarie University. A model was created of the Macquarie University campus to assess current and potential space utilisation. Through real time blocking and stacking we could communicate which planning proposals were more effective. The client realised maybe they needed to do a bit more thinking about their planning, and put our design projects on hold as a result. Hmm.
  • Various Revit macros were written to automate some documentation annotation. I used the Revit API to help annotate ceiling lighting set outs and export drawings, allowing us to deliver some of the more repetitive documentation packages faster.
  • I helped import NSW government address data to the OpenStreetMap project. OpenStreetMap is an important open-source project to provide Wikipedia-style editable maps of the world, and recently received the 2018 Free Software Foundation award for Projects of Social Benefit. I contribute locally in Australia and have helped import tens of thousands of address data from the NSW government.
  • I have contributed to FreeCAD, an open-source pioneer in OpenBIM. FreeCAD is currently the only viable open-source BIM authoring program, and I have implemented various features related to OpenBIM and improved IFC support. I have also written about OpenBIM in general and have advocated heavily for it in the company.
  • Global Health Alliance Melbourne wanted some data visualisation to build a relationship with the company. This was some relatively straightforward web development work, to build a web-based view of some reports. It's something akin to a first-year university assignment to a computer science student, but apparently they liked it.
  • I created some VRs scenes. The company used virtual reality as a way to help clients experience the design. I created two types: static VRs in a cardboard interface, and dynamic VRs where people can walk around with sensors attached in the room. Unfortunately the latter was using packaged software, but I suspect with a bit of experimentation I can do it without.
  • I did some 3D printing based on photogrammetry models. At university, 3D printing is extremely common and I amused myself by printing little beavers and bringing the imaginative scribbles of my nephews to life. At work, we used 3D printers to print boxes. This is the wrong thing to use a printer for, but we did anyway. The cool thing is that the boxes were sized to a photogrammetrically recreated 3D site based off satellite imagery. That was cool.

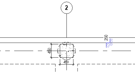
Defence Documentation - 2019

I was involved in multiple projects for the Department of Defence, working with Aurecon and LendLease. I helped do space planning for concept phase, coordination and clash detection with consultants, and construction detailing for construction phase.

I probably can't put up any drawings here, but I'd be happy to talk about the work involved. I feel guilty for putting nothing, so the picture on the left is a snippet from a concrete setout drawing of a column on top of a pile, but you knew that already.

Bakehouse Precinct - 2018

The Bakehouse project involved the redevelopment of the Bakehouse Quarter, the old Arnott's biscuit factory in North Strathfield. The scheme was a typical mixed-use development with dense retail, residential, and commercial buildings.

I performed real-time solar analysis to help position 10-14 residential towers during yield testing, with the aim to minimise impact on the ground plane in a workshop with clients. An evolutionary solver was used to predict the best location to place buildings with respect to solar access.

An additional set of studies were done on local and international precedents using GIS to map green spaces, GPS-tracked movements, and look at census data. The wins were potentially renaturalising Powell's creek, to cause downstream water quality improvements to Parramatta River, improving urban connections across the train station, reusing the existing building fabric, and designing car stacking structures with reduced car-parking requirements that could be converted into retail and residential later.

Please note that images 1-3 on the left were outsourced and were not created by me.

Validated Rendering - 2019

I believe strongly in evidence based design. Part of this is the ability to accurately create virtual prototypes of our designs. Unfortunately, our current visualisation tools are often more artistic than honest, and no one has yet combined the scientific vigour required for light simulation and the artistic craftsmanship required to make the unreal look real. I am striving to change that.

I am developing a new workflow to create "validated" renders, a new offering in the industry where renders are both believable and scientifically accurate. My work on this has involved using Radiance, the gold standard light simulation tool used by sustainability engineers.

My work has fortunately caught the attention of the international Radiance community, with very encouraging feedback (including from Greg Ward, creator of Radiance) and some of my articles referenced on the official Radiance website. Recently, I have launched the world's first open source photometrically accurate 3D model repository. When workflows mature, I hope to share about this in a future International Radiance workshop.

In the future, I envision it will be a legal requirement for any built form that has a significant public presence to have a validated render to prove its aesthetic impact on the environment.

MedFilm Surgical Animations - 2014-2016

You’re sitting in front of the doctor in a hospital. The doctor has just spent the past half hour explaining the procedure you will undergo. It sounds complicated – there are a few things you have to do to prepare, some foods to watch out for, and a recovery process of a few months afterwards. You will later come home to only be bombarded with a series of questions from your friends and family, who are all curious and have somehow managed to ask the questions which you didn’t think of asking earlier. It also doesn’t help that their native language isn’t English.

This was exactly the problem that Erik Kylen, a small team in Sweden, and myself working remotely set out to solve as a keen startup company. We created a film repository of animated videos to explain various medical issues in simple terms translated to multiple languages. Doctors and clinics could use these videos to help guide patients, and patients could then watch these videos from the comfort of their own home. I built the repository system.

Although I am no longer actively involved, MedFilm is steadily growing and now has a repository of over 40 videos covering topics from cardiology to otorhinolaryngology (I’m not a doctor, so to me that’s a very complicated word!), used in clinics across Scandinavia. I’m proud of the service, and happy that it is able to help patients.

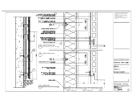
Robotic Masonry - 2016

With a partnership with the University of Sydney, I was involved in two projects related to masonry and robotics. The first involved flying drones to do photogrammetric scanning of public sandstone structures owned by the NSW department of public works. This was before drone flying was commonplace and before photogrammetry solutions were so readily available to the public. Things have really changed since.

Ideally, these scans could be used to catalogue replacement meshes to repair broken structures, and measure rate of erosion. It never really took off, but I learned a lot in the process and also invented what I believe is a brand-new point cloud mesh reconstruction technique using a little-used computer graphics form called "metaballs". In certain cases, it performs much better than other more famous mesh reconstruction techniques such as Poisson. But it's only in certain cases, and those cases aren't common!

I also researched and programmed toolpath generation to cut "osteomorphic" stone blocks with Simon Weir and Shayani Fernando at the University of Sydney. We developed a type of interlocking stone block that could cantilever and did not require much subtractive cutting (to minimise material waste), and built many foam and stone prototypes with a toolhead I hacked together. I'm not sure how useful it is in the industry, but it looked pretty and was exhibited many times around the world. An academic paper was also published and presented at the RobArch 2016 Robotics in Architecture conference. Academia.edu sometimes tells me it has been referenced by another academic. It also helped pushed robotic prototyping at the university, which could be seen in subsequent exhibitions.

There was also a behaviourial robotics tangental research project I helped work on for UNSW where we put a contortionist in a box and had them pretend they were a robot, and I did motion capture similar to what they do in the VFX field. It's a funny story, but that's about it.

Makkoto - 2013-2015

Makkoto was a start-up project that never took off. It was a photo-sharing social network combined with a product customisation platform. It represents the culmination of my web-based software development work and I poured a lot of heart into the project, but life took over.

I was the lead developer managing a team including a designer, and frontend, backend, and mobile (iOS) developers. The entire system was developed with extreme care, including near 100% test coverage, and a usecase-driven architecture where all business logic was completely decoupled. As a result, with a small team, we could simultaneously handle website redesigns, iOS development, and an API.

The system had typical social network features such as news feeds, subscribing, likes, shares, comments, profiles, notifications, as well as typical shopping services including shops, products, carts, and so on. It also had a web-based product designer with layers, effects, stencils, and real time previews with a few faux-3D tricks.

From a UI perspective, this project pioneered a framework-free (replacable compatibility shim in place), webcomponent based UI which at the time was not seen on any large system. Nowadays, this technique is much more common, but still rare in the web industry, but it is clearly the future.

From the backend perspective, although there were many interesting implementations to discuss, by far the largest differentiating factor was that at a certain point, we decided to release the product as a BaaS (backend-as-a-service). This is user-generated API where any app could hook into the entire functionality that Makkoto provided to build their own app. It was implemented within a few days. For those unfamiliar with software development, this is practically unheard of.

This is because, apart from the extreme craftmanship taken over the architecture, I had designed the API to be what is called an RMM level 3 REST API, and designed it in such a way that documentation, tests, and implementation were all generated from one another, which is usually described as the holy grail of API design. To this day I have not come across another system which has pioneered such a technique.

University Projects

While this portfolio has been a snapshot of 3 years of work in HDR, there is an additional collection of work done during my university days. HDR has been an excellent place to grow and learn about documentation, business & client relationships, the design process, and various aspects of design technology such as BIM and computational design. However, my university portfolio still is an excellent supplement to understand my personal approach towards design and solving problems.

Click here to see my university portfolio.

The picture shown is a little bird house I built so that the cockatoos could enjoy an afternoon snack. Admittedly, the practice of foresting timber, purchasing processed wood, cutting with power tools and fixing with steel and glue, coating with water-based paint, and hanging a Coles-bought glued-together seed cube on a plastic hook makes me rethink my approach to feeding birds, but that's the type of thing we tend to do as a species.

Faculty of Architecture, Design and Planning - 2015

Designing a new faculty of architecture is not a simple job, not when they expect you to challenge pedagogy and present the University as the top in the world. Even tougher is when it needs to include the migrating Sydney College of the Arts and 1,000 beds of student accomodation.

But perhaps the biggest challenge is when you decide that building needs to be symbiotic - a building designed as an interdependent species, or organism that has a constructive role within the ecosystem. In collaboration with the agriculture department, this project designed an environmentally net-positive building that regenerated natural infrastructure. To achieve this, the design does not differentiate between the building, the environment, and the community, and uses strategies that play between the interdependency of these three pillars.

Investigating indigenous ecology and site hydrology, this project uses a phased approach to stabilise and restore a wetlands ecosystem with keystone species. This highly experimental approach is capable of ensuring the final ecosystem is autonomous, and enhanced by the buildings, which form a shelterbelt around the main basin. The execution generates inter-faculty links that create environmental and educational positive externalities.

Camellia Urban Renewal - 2015

Camellia, an industrial wasteland with every problem imaginable 2km east of Parramatta CBD. Asbestos, chromium, flooding, congestion, no attractors, no public space, poor public transport, you name it. A hypothetical new metro extension was proposed to set up Camellia to take up the population boom from Parramatta.

A multi-dimensional phased approach was used, involving road redirections, new bus routes and light rail, partnership with the turf club in a new commercial district, as well as new public library and school. But the leading feature was a large park, providing the only green space to the district, mitigating flooding issues, minimising pollutant remediation, improving pedestrian access, and sinking the major Metro and highway links underground.

Of course, a few months after the project was finished, we heard the council decided to decontaminate everything and cover it with as many large apartments as they could fit. Well, that works too, I guess.

Flinders St Station Hotel - 2013

The brief was to produce a bold and viable vision for the re-development of the Flinders Street Station in Melbourne at both urban and architectural scales: an innovative design proposal that will reinvigorate the historic Flinders Street Station, improve its transport function and unlock the urban design and development potential of the precinct.

The Flinders St Hotel is the final element in introducing a larger 50-year masterplan for a unified activity corridor along the north bank of the Yarra river. The hotel features an East and West residential wing, office space, function rooms, recreation and retail.

Based on analysis with Metro Trains Melbourne, the masterplan prioritised improving the degraded western wing, improving rail capacity, and improving north-south urban integration. The approach understood the complexities of the unsuccessful renovation track records, change of rail operations and its influence from Hong Kong's MTR approach, and indecision as part of the larger Melbourne 2030 urban goals.

The design used an incremental approach starting from major activity centers from the east and west to minimise risk whilst building a southern activity corridor following the Yarra river, creating fertile ground for when redevelopment was ripe over the rail station.

The Flinders St Hotel is the final phase of this master plan, and zooms into closer detail on heritage issues, construction issues, and community building.

A full project overview is available showcased on the USyd Architecture Exhibition.

Hornsby Homeless Housing - 2014

A design with an ethical focus to improve the chronically homeless situation faced in the Hornsby suburb. Based on studies done on Mission Australia's Common Ground project, as well as iterative feedback design from those currently working and in homeless housing. The project deals with chronic homelessness, a much harder and nuanced issue than regular homeless housing using a combined strategy of secure housing, jobs and training, one-on-one consultations, and peer influence.

Sustainable Buildings - 2013

Although all design proposals implement passive and active sustainable principles, two of these had it as their primary objective. These tackled not only the traditional concepts of material sustainability, but also economic and social sustainability.

Sydney Museum of Pacific Art - 2012

A challenging brief for a museum of pacific arts on Sydney's Cockatoo Island.

Based on input from the Pacific Islands Museum Association, the design prioritises the ability to effectively showcase the intricacies of past and present Pacific culture. With their help, I was able to merge their concept of a museum with the more traditional approach.

Although accurate representation of pacific cultures was the top priority, other tourist attractions, logistical, and security issues were not ignored. The design features a kinetic structure responding to human interaction, in-house artists and administration, and a tidal barrage, helping support the island's electrical infrastructure.

Selected for the Annual Architecture Catalogue, University of Sydney.

Transforming Streetscapes - 2011

The dying alleyways and back lanes in Sydney are revived with a fun proposal to turn every object into something with multiple purposes. The identifying elements of an alleyway: the overgrowth, bins, gates and narrow pathways all twist, move and reconfigure themselves into a place people want to use.

Comes with IKEA-like assembly instructions to convert your own back lane.

Film & Animation - 2007-2012

Film & animation have grown from a hobby project to a valuable tool to communicate fantastic spaces and emotions. From scriptwriting, storyboarding, background development, to sound effects and film scoring.

Shown in order are: ThoughtScore, a hobby animated film, and still images from Game of Homes, an introduction to the architecture revue, and Escape, winner of the Student Organised Network of Architect's Cinematic Perception competition.

Crematorio do Porto - 2011

A brief for a crematorium (with multiple chapels and administrative facility) in Porto, Portugal was a challenge to strike a balance between the complex circulation, urban relationships, religious beliefs and laws, as well as emotive struggles when one is dealing with the recently deceased.

From interviews with funeral directors, the design was able to tackle Sydney cemeteries' largest architectural issues: access / orientation, capacity, and work flow.

Abstract visualisation - 2012

A personal project to merge the ideologies of software architecture and building architecture invented a complex, machinery driven world.

Meditation Retreat Centre - 2012

A brief for an on-campus meditation retreat centre had its priorities not in the aesthetic nor the functional but instead the spiritual.

With discussions held with philosophers, religious practitioners and life coaches, it was possible to create a building which didn't just perform its function, but pushed its occupants to achieve those immeasurable goals in life.

The design had careful use of material, view framing, and light.

Space Settlement Design Competition - 2008-2009

I led a team of 12 to represent Malaysia twice in a NASA-organised industrial simulation to design a space settlement.

We tackled community design, structure, operations and infrastructure, transport, accommodation, automation, scheduling and business ventures. The project challenged our technical, management and presentation abilities: to distil aspects of such a complex scenario to the appropriate stakeholders.

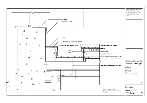
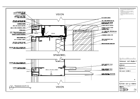
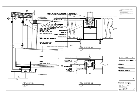
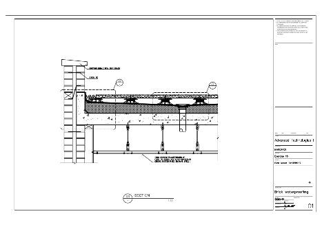
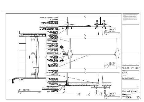
Technical drawings - 2012-2014

Examples of drafting and technical detailing.

Algorithmic Design - 2014

Dealt with generating complex forms (for form's sake), and the proceeding structural simulation, visualisation and documentation of that form. Familiar with concepts of parametric and algorithmic design, and finite element analysis, although not my preferred approach to design.

KDE branding - 2011

Web design, branding and usability testing work with the KDE project, the second-largest open-source organisation in the world.

This project was a joint collaboration between the artists and the software developers within the KDE project to replace their entire existing web infrastructure.

Much, much more.

From music (composition & performance), models, and architectural exploration, to magazine layout, articles, surgical visualisation, robotics, software development, and open-source programming. I enjoy mixing disciplines, diverse interests, and pushing big ideas.

I occasionally write on my blog, which may or may not be of interest.

I also helped organise the 2013 USyd Architecture Graduation exhibition, and set up lighting, bulk manufacturing, website design and development, and live music.

Hello! My name is Dion Moult.

Thank you for spending the time to view my online design portfolio. I hope you enjoyed the selection!

I study architecture at the University of Sydney and am currently in the middle of my Masters in Architecture.

My approach to architecture and design in general revolves around people. Architects shape the world of other people. It becomes our ethical responsibility to learn how they see the world and shape it as such. A successful design improves the lives of those most affected by it.

Although half-Canadian and half-Indonesian I have lived almost my entire life in Malaysia. I have a weakness for Malaysian food and make roti canai (a delicious Malaysian pancake) in my spare time.

View my resume, or contact me directly.